Graz-Rosenberg: Hochwertiges Baugrundstück mit Baubewilligung in idyllischer Bestlage!

Beschreibung
Ein besonderes Wohnerlebnis in exklusiver Lage!
Sie sind auf der Suche nach dem idealen Grundstück für Ihr zukünftiges Zuhause oder nach einer attraktiven und wertstabilen Immobilienanlage? In einer der begehrtesten Wohngegenden von Graz bietet sich Ihnen jetzt eine seltene Gelegenheit!
Inmitten der noblen und ruhigen Wohngegend zwischen Geidorf und Mariagrün wartet dieses traumhafte Grundstück auf seine neuen Eigentümer.
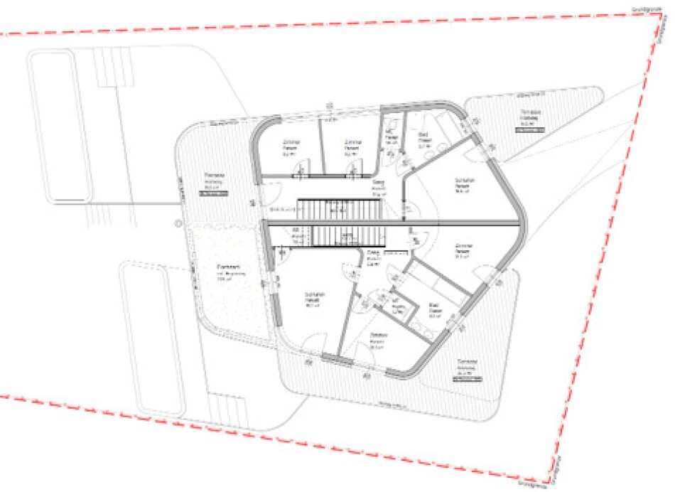
Die wichtigsten Eckdaten auf einen Blick:
-
Gesamtfläche: ca. 895 m² zzgl. Zufahrtsfläche
-
Voll aufgeschlossenes Grundstück
-
Baubewilligung bereits vorhanden – sofortiger Baustart möglich!
-
Bebauungsdichte: 0,3
-
Ersatzpflanzung erforderlich
-
Exklusive Villenlage in der Ziernfeldgasse
-
Ruhige Sackgassenlage – naturnah und idyllisch
-
Absolute Rarität in dieser Gegend
-
Straßenbahn, Bus, Nahversorger sowie medizinische Versorgung und Schulen in unmittelbarer Nähe – alles fußläufig erreichbar
-
In nur ca. 10 Minuten (mit Fahrrad oder öffentlichem Verkehr) ins Zentrum von Graz
-
Kaufpreis: € 760.000,--, inklusive Baubewilligung, fertiggestellter Zufahrt und Aufschließung
-
Honorar: 3 % des Kaufpreises zuzüglich 20 % USt.
Sichern Sie sich noch bis 30. Juni 2026 Ihren finanziellen Vorteil:
Beim Immobilienkauf bis 30. Juni 2026 können Käufer bei Begründung des Hauptwohnsitzes die Grundbucheintragungskosten, sowie die Pfandrechtseintragungsgebühren sparen – diese Ersparnis beträgt bis zu rund 2,3 % des Kaufpreises. Ein attraktiver Vorteil für alle, die jetzt in ihr neues Zuhause investieren.
Dieses Grundstück vereint exklusive Lage, Ruhe und urbanen Komfort – ideal für anspruchsvolle Bauherren oder Investoren mit Weitblick.
Sie können es kaum erwarten diese einzigartige Immobilie zu besichtigen?
Vereinbaren Sie noch heute einen Besichtigungstermin mit
Frau Petra Strohmeier unter 0664/1560931.
Hinweis auf familiäres oder wirtschaftliches Naheverhältnis gemäß § 30b KSchG und § 6 Abs. 4 MaklerG:
Wir möchten erwähnen, dass ein solches Naheverhältnis geeignet sein kann, die Interessen des Auftraggebers zu beeinträchtigen. Der Hinweis erfolgt daher ausdrücklich und rechtzeitig im Sinne der gesetzlichen Offenlegungspflicht.
Wir weisen darauf hin, dass zwischen dem Vermittler und dem zu vermittelnden Dritten ein familiäres oder wirtschaftliches Naheverhältnis besteht.
Der Vermittler ist als Doppelmakler tätig.
Entfernungen
Sie haben Interesse?
Kontaktieren Sie uns jetzt – wir beantworten gerne all Ihre Fragen rund um unsere Immobilienangebote. Auf Wunsch vereinbaren wir einen individuellen Besichtigungstermin, damit Sie sich selbst vor Ort ein Bild machen können.

Diese Immobilie ist vergeben – Ihre wartet vielleicht schon.
Wir freuen uns, dass wir diese Immobilie erfolgreich vermitteln konnten.
Doch vielleicht wartet Ihre Traumimmobilie bereits auf Sie! Werfen Sie gerne einen Blick auf unsere aktuellen Angebote.











