Graz-FH-Joanneum: Charmante 2-Zimmer-Anlegerwohnung mit Balkon!

Beschreibung
VERMIETETE ANLEGERWOHNUNG
MIT VIELEN PLUSPUNKTEN!
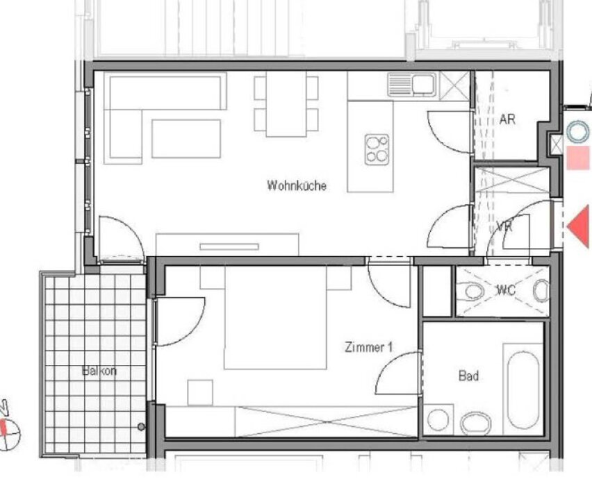
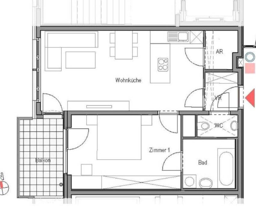
Diese ca. 55,89 m² große 2-Zimmerwohnung befindet sich im 1.Obergeschoss mit Lift und einem sonnigen Westbalkon.
Der Wohnung ist ein Kellerabteil zugeordnet.
Raumaufteilung:
Vorraum, ein geräumiger Abstellraum, ein Schlafzimmer mit angrenzendem Badezimmer mit Wanne, Sprossenheizkörper & Waschmaschinenanschluss und Zugang zum Balkon, einen Wohn/Essbereich mit einem weiteren Zugang zum Balkon.
Für Sie zusammengefasst:
- Sehr gepflegter Zustand
- 2-Zimmerwohnung
- Ca. 55,89 m² Wohnfläche
- Sonniger Westbalkon
- 1. Obergeschoss mit Lift
- Badezimmer mit Wanne & Sprossenheizkörper
- Geräumiger Abstellraum
- Kellerabteil
- Bestehender Mietvertrag - befristet bis 2028
- Netto Mieteinnahmen: € 530,--/Monat
- Betriebskosten: ca. € 100,--/Monat
- Kaufpreis Wohnung: € 215.000, -- netto
- Honorar: 3% vom Kaufpreis + 20% USt.
Entfernungen
Sie haben Interesse?
Kontaktieren Sie uns jetzt – wir beantworten gerne all Ihre Fragen rund um unsere Immobilienangebote. Auf Wunsch vereinbaren wir einen individuellen Besichtigungstermin, damit Sie sich selbst vor Ort ein Bild machen können.

Diese Immobilie ist vergeben – Ihre wartet vielleicht schon.
Wir freuen uns, dass wir diese Immobilie erfolgreich vermitteln konnten.
Doch vielleicht wartet Ihre Traumimmobilie bereits auf Sie! Werfen Sie gerne einen Blick auf unsere aktuellen Angebote.


.png)




