STEIERMARK-HEILIGENKREUZ AM WAASEN: LEISTBARES MEHRGENERATIONEN- ODER GROSZÜGIGES EINFAMILIENHAUS MIT VIELEN MÖGLICHKEITEN!

Beschreibung
Mehrgenerationen- oder großzügiges Einfamilienhaus mit flexiblen Nutzungsmöglichkeiten und die Chance, Wohnen und Arbeiten harmonisch zu verbinden.
Die perfekte Balance zwischen ländlicher Idylle und gemütlichem Komfort.
Eingebettet in die malerische Landschaft des Oststeirischen Hügellandes, bietet die Lage ideale Voraussetzungen für ein ruhiges und naturnahes Leben, ohne auf eine gute Anbindung an Graz zu verzichten.
Für Sie zusammengefasst:
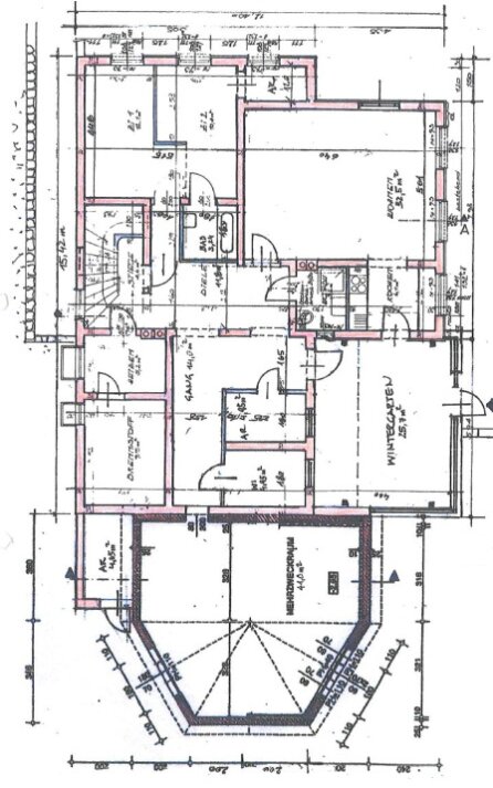
•Ca. 450 m² Wohnfläche auf 3 Ebenen – 14 Zimmer, viele davon mit einem Waschbecken ausgestattet, auch zusammenlegbar und somit auch für mehrere Generationen oder Familien geeignet. SOFORTBEZUG!
•Ca. 1.316 m² Grundstück mit wunderschönen, alten Obstbäumen
•In jedem Stockwerk befindet sich ein Badezimmer mit Dusche und WC sowie teilweise mit Badewanne
•Mehrzweckraum – ein Zubau, der ein gemütliches Wohnzimmer sein kann, wunderbare Raumhöhe, viele Fensterflächen
•Pellets-Zentralheizung und dänischer Ofen im Wintergarten
•Viele Möglichkeiten Stauraum zu schaffen
•Wintergarten, Nebengebäude, Pergola und eine wunderschöne Weinlaube
•Erledigungen des täglichen Lebens, Apotheke, Kindergarten und Schulen in wenigen Autominuten mach- und erreichbar
•Ruhige und ländliche Aussichtslage dennoch in ca. 5 Minuten in Hausmannstätten und in ca. 20 Minuten in Graz
•Kaufpreis: € 315.000,--
•Honorar: 3% vom Kaufpreis zuzüglich 20 % USt.
Der Vermittler ist als Doppelmakler tätig.
Entfernungen
Sie haben Interesse?
Kontaktieren Sie uns jetzt – wir beantworten gerne all Ihre Fragen rund um unsere Immobilienangebote. Auf Wunsch vereinbaren wir einen individuellen Besichtigungstermin, damit Sie sich selbst vor Ort ein Bild machen können.

Diese Immobilie ist vergeben – Ihre wartet vielleicht schon.
Wir freuen uns, dass wir diese Immobilie erfolgreich vermitteln konnten.
Doch vielleicht wartet Ihre Traumimmobilie bereits auf Sie! Werfen Sie gerne einen Blick auf unsere aktuellen Angebote.




















