Graz - St. Peter: Vom Architekten der Terrassenhaussiedlung selbst geplant & persönlich bewohnt – 95 m² Dachterrasse, Dachgarten mit Panorama über Graz!

Beschreibung
Wohnen über den Dächern von Graz – Ikonische Maisonette mit spektakulärer Dachterrasse!
Diese außergewöhnliche 5-Zimmer-Maisonettewohnung erstreckt sich über drei Ebenen und vereint großzügiges Wohnen mit einem beeindruckenden Maß an Freiraum. Das absolute Highlight bildet die rund 95 m² große Dachterrasse mit liebevoll angelegtem Dachgarten und atemberaubendem Rundumblick über Graz – ein seltenes Refugium mitten in der Stadt.
Die Wohnung befindet sich in der renommierten Grazer Terrassenhaussiedlung, einem der bedeutendsten Wohnbauprojekte der 1970er Jahre und heute denkmalgeschützt. Die Anlage gilt als architektonische Ikone und besticht durch ihr einzigartiges Zusammenspiel aus Beton, Licht, Grünflächen und großzügigen Terrassen.
Diese Einheit ist in besonderer Weise einzigartig: Sie wurde vom Architekten selbst bewohnt, der maßgeblich an der Planung und Umsetzung der gesamten Siedlung beteiligt war und die erste Skizze dieses visionären Projekts entwarf. Seit dem Erstbezug im Jahr 1976 diente diese Wohnung als persönlicher Rückzugsort des Architekten – ein Zuhause mit Geschichte und architektonischer Bedeutung.
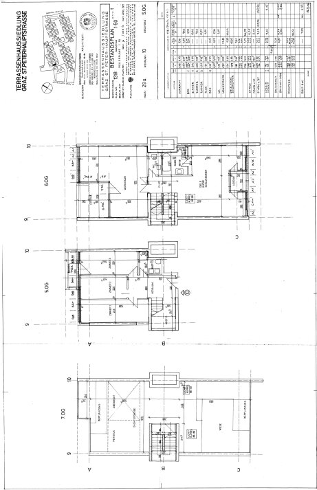
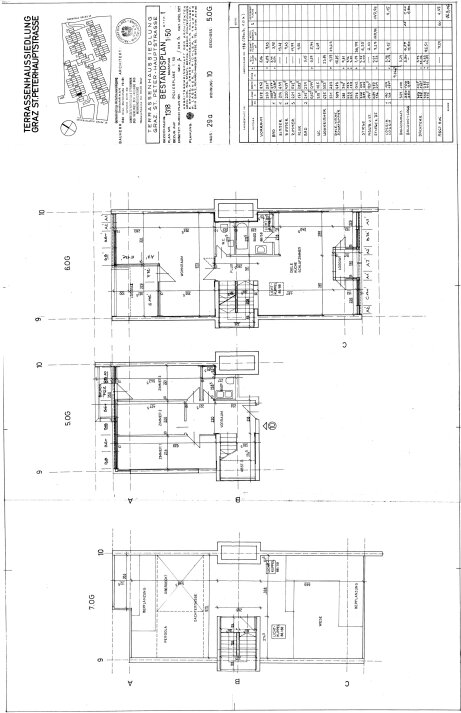
Ein Lift bringt Sie komfortabel bis ins fünfte Obergeschoss, wo ein großzügiger Eingangsbereich mit Platz für Garderobe und Stauraum empfängt. Auf dieser Ebene befinden sich zwei helle, gut geschnittene Kinder- bzw. Arbeitszimmer mit Balkon sowie ein Badezimmer mit Dusche und WC – ideal für Familien oder Gäste.
Das sechste Obergeschoss bildet das Herzstück der Wohnung: Hier erwarten Sie eine geräumige Wohnküche mit Zugang zur Loggia, ein Schlafzimmer mit Bad en Suite (inklusive Badewanne und Bidet) sowie ein großzügiger Wohn- und Essbereich mit direktem Zugang zum Wintergarten. Ein separates Gäste-WC ergänzt diese Ebene optimal.
Im siebten Obergeschoss eröffnet sich schließlich das absolute Highlight: Die außergewöhnliche Dachterrasse mit ca. 95 m² Fläche, Dachgarten und unvergleichlichem Weitblick über die Stadt bietet vielfältige Nutzungsmöglichkeiten – von entspannten Rückzugsorten bis hin zu stilvollen Abenden unter freiem Himmel.
Eckdaten im Überblick
-
Wohnnutzfläche: ca. 154 m² inkl. verglaster Loggia (ca. 6,20 m², als Wintergarten genutzt)
-
Zimmer: 5-Zimmer-Eigentumswohnung
-
Bäder/WCs: 2 Bäder, 2 WCs (inkl. Gäste-WC)
-
5. Obergeschoss: Eingangsbereich, 2 großzügige Zimmer, Badezimmer mit Dusche & WC, Balkon (ca. 3,50 m²)
-
6. Obergeschoss: Wohnküche mit Zugang zur Loggia (ca. 2,98 m²), Schlafzimmer mit Bad en Suite, Wohn-Essbereich, Gäste-WC
-
7. Obergeschoss: Dachterrasse (ca. 95,50 m²) mit Dachgarten & zusätzlicher Außentasche (Stauraum)
-
Ausstattung: Lift, Kellerabteil, Tiefgaragenplatz
-
Zustand: Sanierungsbedarf bei den Oberflächen – ein Sanierungskonzept liegt bereits vor
Kaufkonditionen
-
Kaufpreis Wohnung inkl. Tiefgarage: € 549.000,–
-
Käuferprovision: 3 % vom Kaufpreis zzgl. 20 % USt.
Diese besondere Immobilie bietet Ihnen die seltene Gelegenheit, ein architektonisches Unikat nach eigenen Vorstellungen zu gestalten. Ob behutsame Modernisierung oder umfassende Neugestaltung – hier verbinden sich Geschichte, Architektur und urbaner Lebensraum zu einem Zuhause mit außergewöhnlichem Charakter.
Sichern Sie sich noch bis 30. Juni 2026 Ihren finanziellen Vorteil:
Beim Immobilienkauf bis 30. Juni 2026 können Käufer bei Begründung des Hauptwohnsitzes die Grundbucheintragungskosten, sowie die Pfandrechtseintragungsgebühren sparen – diese Ersparnis beträgt bis zu rund 2,3 % des Kaufpreises. Ein attraktiver Vorteil für alle, die jetzt in ihr neues Zuhause investieren.
Eine wertbeständige Immobilie in bester Grazer Lage –
auch ideal für Anleger,
die ein rundum sorgloses Investment suchen.
Sie sind überzeugt?
Vereinbaren Sie noch heute einen unverbindlichen Besichtigungstermin mit
Frau Petra Strohmeier unter 0664/1560931.
Hinweis auf familiäres oder wirtschaftliches Naheverhältnis gemäß § 30b KSchG und § 6 Abs. 4 MaklerG:
Wir möchten erwähnen, dass ein solches Naheverhältnis geeignet sein kann, die Interessen des Auftraggebers zu beeinträchtigen. Der Hinweis erfolgt daher ausdrücklich und rechtzeitig im Sinne der gesetzlichen Offenlegungspflicht.
Wir weisen darauf hin, dass zwischen dem Vermittler und dem zu vermittelnden Dritten ein familiäres oder wirtschaftliches Naheverhältnis besteht.
Der Vermittler ist als Doppelmakler tätig.
Entfernungen
Sie haben Interesse?
Kontaktieren Sie uns jetzt – wir beantworten gerne all Ihre Fragen rund um unsere Immobilienangebote. Auf Wunsch vereinbaren wir einen individuellen Besichtigungstermin, damit Sie sich selbst vor Ort ein Bild machen können.

Diese Immobilie ist vergeben – Ihre wartet vielleicht schon.
Wir freuen uns, dass wir diese Immobilie erfolgreich vermitteln konnten.
Doch vielleicht wartet Ihre Traumimmobilie bereits auf Sie! Werfen Sie gerne einen Blick auf unsere aktuellen Angebote.










