Graz-Nähe Citypark: Gemütliche, geförderte 3-Zimmer-Wohnung! 1.MONAT MIETFREI!

Beschreibung
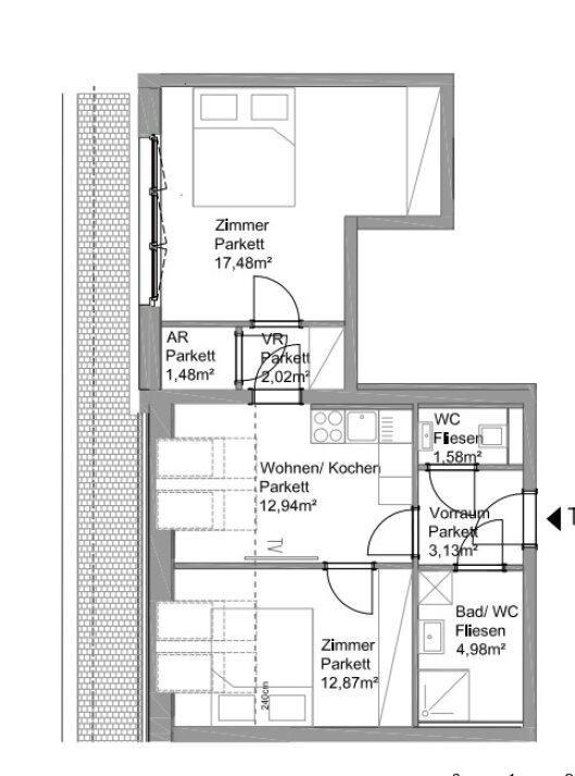
3-Zimmer-Wohnung mit viel Charm!
Diese Immobilie befindet sich in einem Wohnhaus in unmittelbarer Nähe zum Citypark. Sie besticht durch eine gute Lage mit direkter Anbindung ans öffentliche Verkehrsnetz und eine Top Infrastruktur.
Die Raumaufteilung ist wie folgt:
Vorraum, Badezimmer mit Dusche, WC & Waschmaschinenanschluss, Küche mit Ess/Wohnbereich, 2 getrennt begehbare Zimmer und Abstellraum.
Übersicht:
- Wohnfläche: ca. 56,48 m²
- 1.MONAT MIETFREI!
- Optimale Anbindung an den öffentlichen Verkehr (Don Bosco Bahnhof)
- Nahversorger fußläufig erreichbar (Citypark)
- Miete: € 586,91 inkl. BK
- Kaution: € 1.800,--
- Die Miete ist inkl. Betriebskosten, Heizung/Strom extra
- Fußballplatz für Kinder
- Allgemeine Grünfläche mit Sitzmöglichkeiten & Hochbeete
- Parkplatz oder Carport optional anmietbar
- Bezug ab SOFORT!
Der Immobilienmakler erklärt, dass er – entgegen dem in der Immobilienwirtschaft üblichen Geschäftsgebrauch des Doppelmaklers – einseitig nur für den Vermieter tätig ist.
Entfernungen
Sie haben Interesse?
Kontaktieren Sie uns jetzt – wir beantworten gerne all Ihre Fragen rund um unsere Immobilienangebote. Auf Wunsch vereinbaren wir einen individuellen Besichtigungstermin, damit Sie sich selbst vor Ort ein Bild machen können.

Diese Immobilie ist vergeben – Ihre wartet vielleicht schon.
Wir freuen uns, dass wir diese Immobilie erfolgreich vermitteln konnten.
Doch vielleicht wartet Ihre Traumimmobilie bereits auf Sie! Werfen Sie gerne einen Blick auf unsere aktuellen Angebote.









