Graz – Zentrum: HONORARFREI MIETEN! 1 MONATE MIETFREI, STAFFELMIETE, PARKPLÄTZE & NEUGESTALTUNG MÖGLICH!

Beschreibung
Ihre neue Ordination oder Bürofläche in erstklassiger Lage
Willkommen an Ihrem neuen Standort!
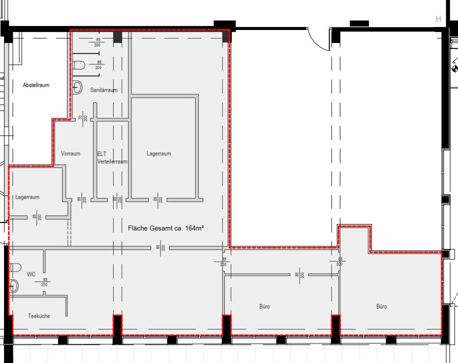
Diese helle und großzügige Fläche von rund 164 m² bietet die ideale Basis für Ihre Ordination, medizinische Fachpraxis, Therapieeinrichtung oder ein repräsentatives Büro.
Die Räume sind flexibel gestaltbar – ob Empfangsbereich, Behandlungszimmer oder Besprechungszone, hier lässt sich Ihr individuelles Konzept optimal umsetzen. In enger Abstimmung mit dem Vermieter kann die Raumaufteilung nach Ihren Bedürfnissen angepasst werden.
Profitieren Sie von einer zentralen Lage, ausgezeichneter Erreichbarkeit und hellen Räumen, die ein angenehmes Arbeits- und Wohlfühlambiente schaffen.
Ihre Vorteile auf einen Blick:
- ca. 164 m² helle, vielseitig nutzbare Fläche
- Flexible Raumgestaltung nach Ihren Wünschen
- Barrierefreier Zugang mit Lift
- Extrabreite Parkplätze für Patient: innen und Mitarbeiter: innen
- Lagerräume bei Bedarf verfügbar
- Langfristige Mietverträge möglich
Kostenübersicht (Staffelmiete):
- 1. Jahr: € 8,50 / m² netto
- 2. Jahr: € 10,00 / m² netto
- 3. Jahr: € 11,00 / m² netto
- ab dem 4. Jahr: € 12,00 / m² netto
- Betriebskosten: € 3,50 / m² netto
- Kaution: 3 Bruttomonatsmieten
Zusätzlich:
- 1. MONAT mietfrei!
- Honorarfrei für Mieter: innen!
Sie sind schön länger auf der Suche nach einem neuem Firmenstandort, dann haben wir für Sie genau das Richtige!
Rufen Sie jetzt an und vereinbaren Sie Ihren unverbindlichen Besichtigungstermin
mit Frau Mihelic 0664/61 47 047 .
Hinweis auf familiäres oder wirtschaftliches Naheverhältnis gemäß § 30b KSchG und § 6 Abs. 4 MaklerG:
Wir möchten erwähnen, dass ein solches Naheverhältnis geeignet sein kann, die Interessen des Auftraggebers zu beeinträchtigen. Der Hinweis erfolgt daher ausdrücklich und rechtzeitig im Sinne der gesetzlichen Offenlegungspflicht.
Wir weisen darauf hin, dass zwischen dem Vermittler und dem zu vermittelnden Dritten ein familiäres oder wirtschaftliches Naheverhältnis besteht.
Der Vermittler ist als Doppelmakler tätig.
Entfernungen
Sie haben Interesse?
Kontaktieren Sie uns jetzt – wir beantworten gerne all Ihre Fragen rund um unsere Immobilienangebote. Auf Wunsch vereinbaren wir einen individuellen Besichtigungstermin, damit Sie sich selbst vor Ort ein Bild machen können.

Diese Immobilie ist vergeben – Ihre wartet vielleicht schon.
Wir freuen uns, dass wir diese Immobilie erfolgreich vermitteln konnten.
Doch vielleicht wartet Ihre Traumimmobilie bereits auf Sie! Werfen Sie gerne einen Blick auf unsere aktuellen Angebote.









