Schladming-Zentrum: Perfekte Ferienimmobilie – Toplage mit attraktivem Ertragspotenzial!

Beschreibung
Natur hautnah erleben – Exklusives Gartenapartment in Traumlage
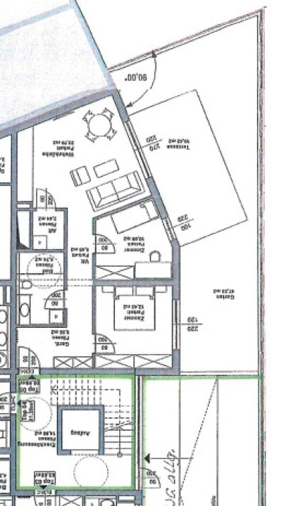
Mitten in einer idyllischen Naturlandschaft und mit unverbaubarem Blick ins Grüne erwartet Sie dieses stilvolle 3-Zimmer-Gartenapartment im Erdgeschoss einer modernen Wohnanlage. Auf rund 65,99 m² Wohnfläche vereinen sich hochwertiges Design, eine intelligente Raumaufteilung und ein behagliches Wohnambiente – ideal für Eigennutzer wie auch für die touristische Vermietung.
Die großzügige Terrasse (ca. 19,42 m²) und der sonnige Eigengarten (ca. 47,23 m²) laden zum Entspannen, Genießen und Verweilen ein – hier finden Sie Ihren persönlichen Rückzugsort.
Für zusätzlichen Komfort sorgen ein Tiefgaragenstellplatz mit Wallbox für E-Mobilität, ein geräumiges Kellerabteil sowie ein Abstellraum mit Waschmaschinenanschluss.
Ihre Highlights auf einen Blick
-
Ca. 65,99 m² Wohnfläche mit 3 optimal geschnittenen Zimmern
-
Terrasse (ca. 19,42 m²) und sonniger Eigengarten (ca. 47,23 m²)
-
Hochwertig ausgestattet, voll möbliert, sofort bezugsbereit
-
Flexible Nutzung: Hauptwohnsitz oder touristische Vermietung
-
Modernes Bad mit Massagedusche und Sprossenheizkörper
-
Separates WC mit Handwaschbecken
-
Tiefgaragenstellplatz mit Wallbox inklusive
-
Großzügiges Kellerabteil für mehr Stauraum
-
Ruhige Lage mit traumhaftem Naturblick
Kaufpreisübersicht
-
Apartment: € 748.000,–
-
Möbel & Inventar: € 15.000,–
-
Tiefgaragenstellplatz: € 27.000,–
-
Vermittlungshonorar: 3 % des Kaufpreises zzgl. 20 % USt.
Sichern Sie sich noch bis 30. Juni 2026 Ihren finanziellen Vorteil:
Beim Immobilienkauf bis 30. Juni 2026 können Käufer bei Begründung des Hauptwohnsitzes die Grundbucheintragungskosten, sowie die Pfandrechtseintragungsgebühren sparen – diese Ersparnis beträgt bis zu rund 2,3 % des Kaufpreises. Ein attraktiver Vorteil für alle, die jetzt in ihr neues Zuhause investieren.
Einziehen, genießen, ankommen – Dieses Gartenapartment ist eine seltene Gelegenheit für Ruhesuchende, Naturliebhaber oder als renditestarke Investition in die touristische Vermietung.
Vereinbaren Sie noch heute einen unverbindlichen Besichtigungstermin mit
Frau Karo Mihelic unter 0664/6147047.
Hinweis auf familiäres oder wirtschaftliches Naheverhältnis gemäß § 30b KSchG und § 6 Abs. 4 MaklerG:
Wir möchten erwähnen, dass ein solches Naheverhältnis geeignet sein kann, die Interessen des Auftraggebers zu beeinträchtigen. Der Hinweis erfolgt daher ausdrücklich und rechtzeitig im Sinne der gesetzlichen Offenlegungspflicht.
Wir weisen darauf hin, dass zwischen dem Vermittler und dem zu vermittelnden Dritten ein familiäres oder wirtschaftliches Naheverhältnis besteht.
Der Vermittler ist als Doppelmakler tätig.
Entfernungen
Sie haben Interesse?
Kontaktieren Sie uns jetzt – wir beantworten gerne all Ihre Fragen rund um unsere Immobilienangebote. Auf Wunsch vereinbaren wir einen individuellen Besichtigungstermin, damit Sie sich selbst vor Ort ein Bild machen können.

Diese Immobilie ist vergeben – Ihre wartet vielleicht schon.
Wir freuen uns, dass wir diese Immobilie erfolgreich vermitteln konnten.
Doch vielleicht wartet Ihre Traumimmobilie bereits auf Sie! Werfen Sie gerne einen Blick auf unsere aktuellen Angebote.


.png)








