Obegg–Graßnitzberg: Top-Investment mit Perspektive – vielseitige & einzigartige Immobilie mit großem Entwicklungspotenzial!

Beschreibung
Idyllisches Anwesen mit Weitblick – Einfamilienhaus mit Entwicklungspotenzial in absoluter Ruhelage
Zum Verkauf steht ein wahrlich außergewöhnliches Anwesen inmitten der idyllischen Hügellandschaft der Südsteiermark. Hier vereinen sich Ruhe, Natur und ein unvergleichliches Panorama zu einem Ort, an dem Wohnen zu einem Erlebnis wird. Der atemberaubende Rundumblick über sanfte Weingärten, Wälder und Wiesen schafft eine Atmosphäre, die jeden Tag wie Urlaub erscheinen lässt – ein Refugium für alle, die das Besondere suchen.
Das bestehende Einfamilienhaus wartet darauf, mit vielen Ideen und Kreativität zu neuem Leben erweckt zu werden. Ob liebevolle Sanierung oder großzügige Erweiterung – die Möglichkeit, die Wohnfläche zu verdoppeln, eröffnet Raum für Visionen und individuelle Wohnträume. Ein aktuell landwirtschaftlich genutztes Nebengebäude bietet zusätzlichen Platz und unterstreicht die Vielseitigkeit dieser Liegenschaft.
Die weitläufigen landwirtschaftlichen Nutzflächen, Weingärten und Wälder – aktuell befristet verpachtet – runden das Angebot ab und machen dieses Anwesen nicht nur für Eigennutzer, sondern auch für Investoren mit Sinn für nachhaltige Wertsteigerung besonders attraktiv.
Auf einen Blick:
-
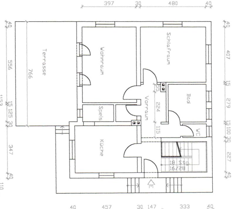
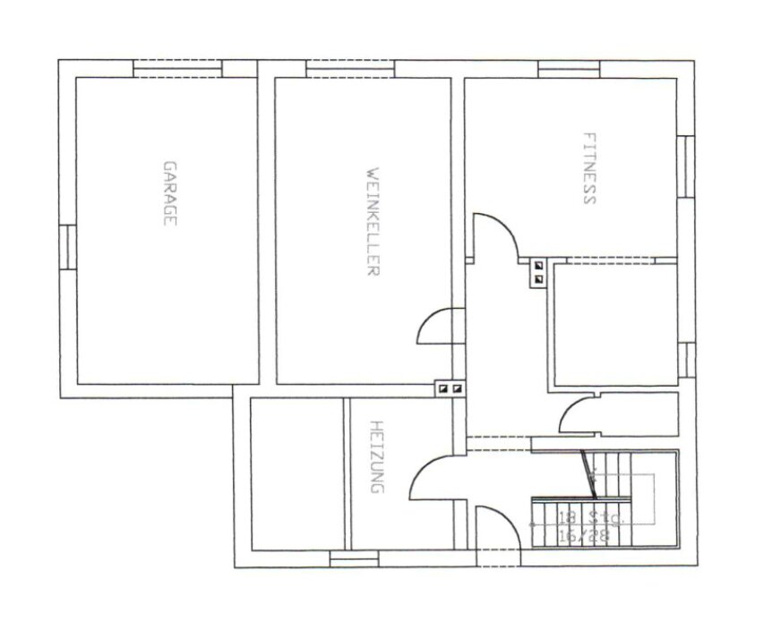
Bestehendes Haus: ca. 82 m² Erdgeschoßfläche, ca. 70 m² nicht ausgebauter Dachboden, ca. 87 m² Kellerfläche
-
ca. 31.734 m² landwirtschaftliche Nutzfläche, Wiesen
-
ca. 12.788 m² Weingärten
-
ca. 7.822 m² Wald
-
sanierungsbedürftiges Einfamilienhaus mit Erweiterungspotenzial
-
Möglichkeit zur Verdoppelung der Wohnfläche
-
Nebengebäude mit vielfältigen Nutzungsmöglichkeiten
-
Traumlage mit unverbaubarem Rundumblick
-
landwirtschaftliche Nutzflächen, Wald und Weingärten - befristet verpachtet
-
Energieausweis in Bearbeitung
-
Kaufpreis: € 598.000,--
-
Maklerhonorar: 3 % vom Kaufpreis zuzüglich 20 % USt.
Sichern Sie sich noch bis 30. Juni 2026 Ihren finanziellen Vorteil:
Beim Immobilienkauf bis 30. Juni 2026 können Käufer bei Begründung des Hauptwohnsitzes die Grundbucheintragungskosten, sowie die Pfandrechtseintragungsgebühren sparen – diese Ersparnis beträgt bis zu rund 2,3 % des Kaufpreises. Ein attraktiver Vorteil für alle, die jetzt in ihr neues Zuhause investieren.
Dieses Anwesen ist weit mehr als nur ein Haus – es ist ein Ort der Möglichkeiten, ein Platz zum Träumen und Gestalten, ein Rückzugsort inmitten intakter Natur. Hier verschmelzen Lebensqualität und Entwicklungspotenzial zu einer seltenen Gelegenheit, die Sie nicht verpassen sollten.
Zögern Sie nicht – vereinbaren Sie noch heute einen unverbindlichen Besichtigungstermin mit Frau Karo Mihelic unter 0664/6147047 und lassen Sie sich von diesem einzigartigen Anwesen begeistern.
Wer das Besondere sucht, wird hier sein neues Zuhause finden.
Hinweis auf familiäres oder wirtschaftliches Naheverhältnis gemäß § 30b KSchG und § 6 Abs. 4 MaklerG:
Wir möchten erwähnen, dass ein solches Naheverhältnis geeignet sein kann, die Interessen des Auftraggebers zu beeinträchtigen. Der Hinweis erfolgt daher ausdrücklich und rechtzeitig im Sinne der gesetzlichen Offenlegungspflicht.
Wir weisen darauf hin, dass zwischen dem Vermittler und dem zu vermittelnden Dritten ein familiäres oder wirtschaftliches Naheverhältnis besteht.
Der Vermittler ist als Doppelmakler tätig.
Entfernungen
Sie haben Interesse?
Kontaktieren Sie uns jetzt – wir beantworten gerne all Ihre Fragen rund um unsere Immobilienangebote. Auf Wunsch vereinbaren wir einen individuellen Besichtigungstermin, damit Sie sich selbst vor Ort ein Bild machen können.

Diese Immobilie ist vergeben – Ihre wartet vielleicht schon.
Wir freuen uns, dass wir diese Immobilie erfolgreich vermitteln konnten.
Doch vielleicht wartet Ihre Traumimmobilie bereits auf Sie! Werfen Sie gerne einen Blick auf unsere aktuellen Angebote.












