Graz-Nähe Citypark: Geförderte 3-Zimmer-Wohnung mit Dachterrasse in zentraler Lage!

Beschreibung
3-Zimmer-Wohnung mit Charme & Terrasse – Nähe Citypark
Diese gemütliche 3-Zimmer-Wohnung bietet alles, was man sich zum Wohlfühlen wünscht: eine durchdachte Raumaufteilung, eine sonnige Terrasse und eine hervorragende Lage mit optimaler Infrastruktur.
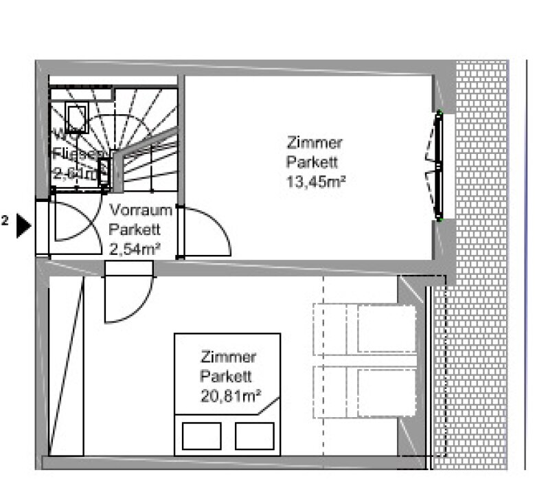
Raumaufteilung:
-
Erdgeschoss: Vorraum, WC mit Handwaschbecken, zwei getrennt begehbare Schlafzimmer
-
Obergeschoss: Offener Wohn-/Essbereich mit Küche und Zugang zur Terrasse, Badezimmer mit Dusche, Fenster und Waschmaschinenanschluss
Highlights der Wohnung:
-
Wohnfläche: ca. 74,87 m²
-
Sonnige Terrasse
-
Optimale Anbindung an den öffentlichen Verkehr (Bahnhof Don Bosco)
-
Citypark & Nahversorger fußläufig erreichbar
-
Fußballplatz für Kinder & allgemeine Grünfläche mit Sitzmöglichkeiten und Hochbeeten
-
Parkplatz oder Carport optional anmietbar
Kosten:
-
Miete: € 726,26 inkl. Betriebskosten (exkl. Heizung & Strom)
-
Kaution: € 2.200,--
Diese Wohnung eignet sich ideal für Paare, kleine Familien oder alle, die Wert auf gute Infrastruktur und ein angenehmes Wohnumfeld legen.
Interesse geweckt?
Kontaktieren Sie uns gerne für einen Besichtigungstermin mit Frau Jasmin Hauber unter 0664/5175604.
Hinweis auf familiäres oder wirtschaftliches Naheverhältnis gemäß § 30b KSchG und § 6 Abs. 4 MaklerG:
Wir möchten erwähnen, dass ein solches Naheverhältnis geeignet sein kann, die Interessen des Auftraggebers zu beeinträchtigen. Der Hinweis erfolgt daher ausdrücklich und rechtzeitig im Sinne der gesetzlichen Offenlegungspflicht.
Der Immobilienmakler erklärt, dass er – entgegen dem in der Immobilienwirtschaft üblichen Geschäftsgebrauch des Doppelmaklers – einseitig nur für den Vermieter tätig ist.
Entfernungen
Sie haben Interesse?
Kontaktieren Sie uns jetzt – wir beantworten gerne all Ihre Fragen rund um unsere Immobilienangebote. Auf Wunsch vereinbaren wir einen individuellen Besichtigungstermin, damit Sie sich selbst vor Ort ein Bild machen können.

Diese Immobilie ist vergeben – Ihre wartet vielleicht schon.
Wir freuen uns, dass wir diese Immobilie erfolgreich vermitteln konnten.
Doch vielleicht wartet Ihre Traumimmobilie bereits auf Sie! Werfen Sie gerne einen Blick auf unsere aktuellen Angebote.











