Graz-Geidorf: Kleines Bauherrenmodell! Exklusives Neubauprojekt – Erstbezug in bester Lage, honorarfrei, Liftkomfort, Keller, Tiefgarage!

Beschreibung
Zeitlose Ästhetik trifft auf höchste Wohnqualität!
Das besondere Augenmerk der Planung liegt auf cleveren und funktionalen Grundrissen: Jede Wohnung punktet mit offenen, hellen Wohn-Ess-Bereichen, ruhigen Schlafzimmern, praktischen Abstellräumen und privaten Freiflächen wie Balkon, Loggia oder Terrasse. Großzügige Verglasungen holen viel Tageslicht in die Innenräume und schaffen eine freundliche Atmosphäre. Die Raumaufteilung garantiert optimale Lichtverhältnisse und sorgt für eine klare Trennung von Wohn- und Ruhezonen. Für höchsten Komfort sorgt eine moderne Ausstattung mit barrierefreiem Lift, einer hauseigenen Tiefgarage, sowie Einlagerungsräume für jede Einheit. Ein Fahrradraum und umweltfreundliche Haustechnik runden das Bild ab – beides ein Plus für nachhaltige Lebensqualität. Die Rottalmühle steht so für urbanes Leben in einem der schönsten Bezirke von Graz– mit durchdachter Architektur, Komfort, hoher Wohnqualität und intelligenten Grundrissen für die Anforderungen von morgen. So fühlt sich Leben in Geidorf an!
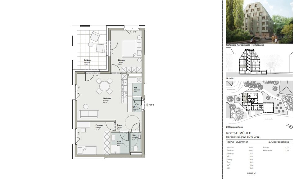
Raumaufteilung:
Diese durchdacht geplante Wohnung überzeugt mit einer klaren Struktur und optimaler Flächennutzung:
Ein einladender Vorraum führt in ein Zimmer, die vielfältige Nutzungsmöglichkeiten als Schlafzimmer, Büro oder Gästezimmer bieten.
Ein praktischer Abstellraum mit Waschmaschinenanschluss sorgt für zusätzlichen Stauraum.
Das separate WC mit Handwaschbecken sowie das elegante Badezimmer mit Waschbecken und bodenebener Dusche präsentieren sich modern und hochwertig ausgestattet.
Vom Wohn/Essbereich erreicht man ein weiteres Schlafzimmer mit einem weiteren Zugang zum Balkon.
Der lichtdurchflutete Wohn-, Ess- und Küchenbereich bildet das Herzstück der Wohnung mit direkten Zugang zum Balkon, der zum Verweilen im Freien einlädt.
Selbstverständlich ist die Wohnung barrierefrei ausgeführt und bietet höchsten Wohnkomfort.
Ein Zuhause mit Geschichte!
Kleines Bauherrenmodell mit Wohnungszuordnung möglich!
Das kleine Bauherrenmodell bietet Anleger:innen eine hervorragende Möglichkeit, in erstklassige Sanierungsprojekte zu investieren und dabei von attraktiven Steuervorteilen zu profitieren. Als Investor:in werden Sie Teil eines Immobilienprojektes und genießen dabei die Vorteile der Bauherreneigenschaft, denn die Herstellungs- und Sanierungskosten sind vorsteuerabzugsberechtigt, dies erhöht Ihre Liquidität.
Zudem werden diese Kosten über einen Zeitraum von nur 15 Jahren abgeschrieben, sodass Sie von erheblichen Steuerentlastungen profitieren. Ein besonderes Highlight ist das Assanierung–Landesdarlehen, das als Annuitätenzuschuss gewährt wird und davon bis zu 30 Prozent nicht zurückgezahlt werden müssen. Dadurch sinkt die Eigenkapitalbelastung erheblich. Gleichzeitig erhalten Sie direktes Wohnungseigentum und partizipieren an möglichen Wertsteigerungen.
Mit dieser Investition schaffen Sie nicht nur nachhaltigen und leistbaren Wohnraum, sondern nutzen auch eine clever kombinierte Steuer- und Förderungsstrategie für maximale Rendite und Sicherheit. Das kleine Bauherrenmodell ist die smarte Lösung für alle, die Immobilieninvestment und Steuervorteile optimal verbinden möchten.
Für Sie zusammengefasst:
- Geförderte Erstbezugswohnung - ca. 64,60 m² Wohnfläche
- 3-Zimmer
- 2. Obergeschoss
- Ca. 12 m² Balkon
- Liftkomfort, Kellerabteil, Tiefgarage
- hochwertigste Ausstattung zB Fischgrätparketten, großformatiges Feinsteinzeug, Sanitärgegenstände der Marke Villeroy & Boch, Sprossenheizkörper, elektrischer Sonnenschutz, Holz-Alu-Fenster,...
- Raumaufteilung können Sie noch gestalten
- Oberflächenoptik können Sie noch wählen
- Ca. 2,60 m Raumhöhe
- Kleines Bauherrenmodell mit Wohnungszuordnung
- Landesdarlehen Assanierung
- Das Gebäude wird in "Klimaaktiv Silber" Qualität errichtet
- Netto-Kaufpreis: € 323.000,--
- Landesdarlehen: € 70.000,--
- Honorarfrei für Käufer: innen!
- Weitere Informationen unter www.top-living.at/rottalmuehle/
Weitere Wohnungstypen sind noch verfügbar:
- 2-Zimmer ca. 51 m², Terrasse
- 3-Zimmer ab ca. 65 m² bis ca. 80 m² Wohnfläche, Terrassen oder Loggien
- Weitere 4-Zimmerwohnungen mit Terrassen oder Loggien
- Penthaus - mit dem Lift direkt in die Wohnung
Die Rottalmühle steht für urbanes Leben
in einem der schönsten Bezirke von Graz.
Vereinbaren Sie noch heute einen Beratungstermin mit
Frau Karo Mihelic unter 0664/6147047.
Hinweis auf familiäres oder wirtschaftliches Naheverhältnis gemäß § 30b KSchG und § 6 Abs. 4 MaklerG:
Wir möchten erwähnen, dass ein solches Naheverhältnis geeignet sein kann, die Interessen des Auftraggebers zu beeinträchtigen. Der Hinweis erfolgt daher ausdrücklich und rechtzeitig im Sinne der gesetzlichen Offenlegungspflicht.
Wir weisen darauf hin, dass zwischen dem Vermittler und dem zu vermittelnden Dritten ein familiäres oder wirtschaftliches Naheverhältnis besteht.
Der Vermittler ist als Doppelmakler tätig.
Entfernungen
Sie haben Interesse?
Kontaktieren Sie uns jetzt – wir beantworten gerne all Ihre Fragen rund um unsere Immobilienangebote. Auf Wunsch vereinbaren wir einen individuellen Besichtigungstermin, damit Sie sich selbst vor Ort ein Bild machen können.

Diese Immobilie ist vergeben – Ihre wartet vielleicht schon.
Wir freuen uns, dass wir diese Immobilie erfolgreich vermitteln konnten.
Doch vielleicht wartet Ihre Traumimmobilie bereits auf Sie! Werfen Sie gerne einen Blick auf unsere aktuellen Angebote.










