St. Andrä: Helle, geförderte 3-Zimmer-Wohnung mit Parkplatz!

Beschreibung
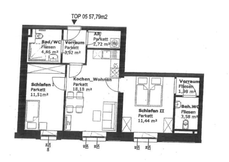
Helle 3-Zimmer-Wohnung – Wohnen zum Wohlfühlen
Diese attraktive 3-Zimmer-Wohnung begeistert mit einer durchdachten Raumaufteilung und einer lichtdurchfluteten Wohnatmosphäre, die sofort zum Ankommen und Wohlfühlen einlädt. Der offen gestaltete Wohn- und Essbereich mit integrierter Küche bildet das Herzstück der Wohnung und vermittelt dank großzügiger Fensterflächen ein besonders angenehmes Raumgefühl sowie eine freundliche, einladende Stimmung.
Zwei separat begehbare Zimmer bieten vielseitige Nutzungsmöglichkeiten – ob als Schlafzimmer, Kinderzimmer oder Homeoffice. Das moderne Badezimmer ist mit einer bodenebenen Dusche ausgestattet und sorgt für zusätzlichen Komfort. Ergänzt wird das Raumangebot durch zwei WCs, die den Alltag besonders praktisch gestalten.
Ein Abstellraum mit Waschmaschinenanschluss bietet wertvollen Stauraum und funktionale Lösungen. Zur Wohnung gehört ein eigenes Kellerabteil.
Diese Wohnung vereint Komfort, Funktionalität und Wohnqualität – ein ideales Zuhause für alle, die Wert auf Helligkeit, eine angenehme Atmosphäre und eine durchdachte Ausstattung legen.
Eckdaten im Überblick:
-
3 Zimmer mit optimaler Aufteilung
-
ca. 57,79 m² Wohnfläche
-
Kellerabteil
-
Parkplatz: € 72,-- pro Monat
-
Miete: € 539,79 inkl. BK
-
Kaution: € 1.836,--
-
Bezug: Ab 1. Mai 2026
Ein ideales Zuhause für Singles oder Paare, die modernes Wohnen mit Komfort, Licht und Freiraum verbinden möchten – in einer Lage, die urbanen Lebensstil und ruhiges Wohnen perfekt vereint.
Sie können es kaum erwarten diese einzigartige Immobilie zu besichtigen?
Vereinbaren Sie noch heute einen Besichtigungstermin mit
Frau Karo Mihelic unter 0664/6147047.
Hinweis auf familiäres oder wirtschaftliches Naheverhältnis gemäß § 30b KSchG und § 6 Abs. 4 MaklerG:
Wir möchten erwähnen, dass ein solches Naheverhältnis geeignet sein kann, die Interessen des Auftraggebers zu beeinträchtigen. Der Hinweis erfolgt daher ausdrücklich und rechtzeitig im Sinne der gesetzlichen Offenlegungspflicht.
Wir weisen darauf hin, dass zwischen dem Vermittler und dem zu vermittelnden Dritten ein familiäres oder wirtschaftliches Naheverhältnis besteht.
Der Immobilienmakler erklärt, dass er – entgegen dem in der Immobilienwirtschaft üblichen Geschäftsgebrauch des Doppelmaklers – einseitig nur für den Vermieter tätig ist.
Entfernungen
Sie haben Interesse?
Kontaktieren Sie uns jetzt – wir beantworten gerne all Ihre Fragen rund um unsere Immobilienangebote. Auf Wunsch vereinbaren wir einen individuellen Besichtigungstermin, damit Sie sich selbst vor Ort ein Bild machen können.

Diese Immobilie ist vergeben – Ihre wartet vielleicht schon.
Wir freuen uns, dass wir diese Immobilie erfolgreich vermitteln konnten.
Doch vielleicht wartet Ihre Traumimmobilie bereits auf Sie! Werfen Sie gerne einen Blick auf unsere aktuellen Angebote.


.png)








