Graz - Liebenau: Erstbezug! 2-Zimmer-Wohnung mit großem Balkon & Tiefgaragenparkplatz! Für den Eigenbedarf oder zur Veranlagung!

Beschreibung
Erst- und Sofortbezug!
Diese charmante 2-Zimmer-Wohnung überzeugt durch moderne Ausstattung, helle Räume und ein besonders angenehmes Wohngefühl – ideal für Singles, Anleger oder als perfekte Ergänzung zum Penthouse im selben Haus.
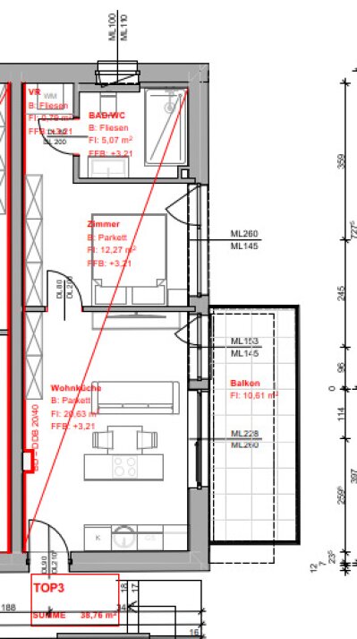
Auf rund 38 m² Wohnfläche erwarten Sie ein heller Wohnbereich sowie ein gemütliches Schlafzimmer. Große Fensterflächen sorgen für eine lichtdurchflutete Atmosphäre und verleihen der Wohnung eine freundliche, einladende Ausstrahlung.
Ein besonderes Highlight ist der rund 10 m² große, ostseitig ausgerichtete Balkon, der Ihnen bereits am Morgen Sonne bietet und zum entspannten Start in den Tag einlädt.
Die Wohnung befindet sich im 1. Obergeschoss und ist bequem mit dem Lift erreichbar. Als Erstbezug profitieren Sie von modernen, hochwertigen Ausführungen und stylischen Oberflächen, die ein zeitgemäßes und attraktives Wohnambiente schaffen.
Abgerundet wird dieses Angebot durch einen Tiefgaragenplatz, der bereits im Kaufpreis inkludiert ist.
Diese Wohnung vereint Stil, Komfort und attraktive Nutzungsmöglichkeiten – eine hervorragende Gelegenheit für Eigennutzer und Investoren.
Zusätzlich steht im selben Haus ein exklusives Penthouse mit ca. 113 m² Wohnfläche sowie einer beeindruckenden, rund 103 m² großen Rundum-Terrasse zum Verkauf. Zwei Tiefgaragenplätze sind bereits inkludiert – eine ideale Ergänzung für Eigennutzer oder eine attraktive Kombination aus Wohnen und Investition.
Für Sie zusammengefasst
- Attraktive 2-Zimmer-Wohnung im selben Haus wie das Penthouse – ideal für Eigennutzer oder als Ergänzung
- Ca. 38 m² Wohnfläche mit hellem Wohnbereich und gemütlichem Schlafzimmer
- Ca. 10 m² großer Balkon (ostseitig) – Morgensonne inklusive
- 1. Obergeschoss mit Lift – bequem erreichbar
- Erstbezug mit modernen, hochwertigen und stylischen Oberflächen
- Lichtdurchflutete Räume für ein angenehmes Wohngefühl
- 1 Tiefgaragenplatz im Kaufpreis inkludiert
- Großzügiges Kellerabteil für zusätzlichen Stauraum
- Kaufpreis: € 199.000,- (inkl. Garagenplatz)
- Maklerhonorar: 3 % des Kaufpreises zzgl. 20 % USt.
Sichern Sie sich noch bis 30. Juni 2026 Ihren finanziellen Vorteil:
Beim Immobilienkauf bis 30. Juni 2026 können Käufer bei Begründung des Hauptwohnsitzes die Grundbucheintragungskosten, sowie die Pfandrechtseintragungsgebühren sparen – diese Ersparnis beträgt bis zu rund 2,3 % des Kaufpreises. Ein attraktiver Vorteil für alle, die jetzt in ihr neues Zuhause investieren.
Haben wir Ihr Interesse geweckt?
Vereinbaren Sie jetzt einen Besichtigungstermin mit Frau Cara Mihelic unter 0664 2323569!
Hinweis auf familiäres oder wirtschaftliches Naheverhältnis gemäß § 30b KSchG und § 6 Abs. 4 MaklerG:
Zwischen dem Makler und dem vermittelten Dritten besteht ein familiäres bzw. wirtschaftliches Naheverhältnis im Sinne des § 30b Konsumentenschutzgesetzes und § 6 Abs. 4 Maklergesetzes.
Wir weisen darauf hin, dass ein solches Naheverhältnis geeignet sein kann, die Interessen des Auftraggebers zu beeinträchtigen. Der Hinweis erfolgt daher ausdrücklich und rechtzeitig im Sinne der gesetzlichen Offenlegungspflicht.
Wir weisen darauf hin, dass zwischen dem Vermittler und dem zu vermittelnden Dritten ein familiäres oder wirtschaftliches Naheverhältnis besteht.
Der Vermittler ist als Doppelmakler tätig.
Entfernungen
Sie haben Interesse?
Kontaktieren Sie uns jetzt – wir beantworten gerne all Ihre Fragen rund um unsere Immobilienangebote. Auf Wunsch vereinbaren wir einen individuellen Besichtigungstermin, damit Sie sich selbst vor Ort ein Bild machen können.

Diese Immobilie ist vergeben – Ihre wartet vielleicht schon.
Wir freuen uns, dass wir diese Immobilie erfolgreich vermitteln konnten.
Doch vielleicht wartet Ihre Traumimmobilie bereits auf Sie! Werfen Sie gerne einen Blick auf unsere aktuellen Angebote.

Detailinfos
Graz - Liebenau: Erstbezug! 2-Zimmer-Wohnung mit großem Balkon & Tiefgaragenparkplatz! Für den Eigenbedarf oder zur Veranlagung!
Balkon-Fläche: 11 m²
Zimmer: 2
Bäder: 1
Balkone: 1
Terrassen: 1
Keller: 1
Balkone: 1
WCs: 1
Garagen: 1
Nutzungsart: Wohnen
Verfügbar ab:
Möblierung: nicht möbliert
Bauart: Neubau
Zustand: Erstbezug

.png)








