Top 8 - Haus 3
Modernes Wohnen in alpiner Idylle
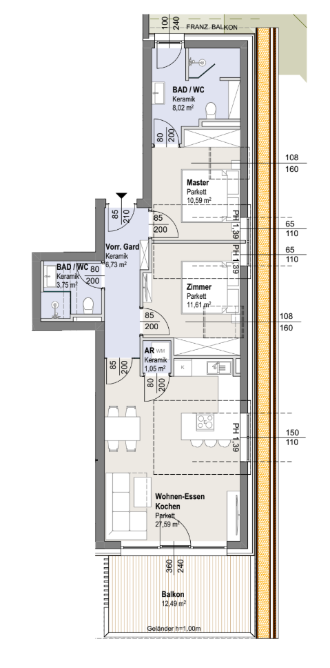
Diese lichtdurchflutete Balkonwohnung vereint gemütliches Design mit cleverer Raumaufteilung. Zwei Schlafzimmer, eine offene Wohnküche und hochwertige Materialien schaffen ein harmonisches Wohngefühl – perfekt für alle, die Ruhe, Natur und stilvolles Wohnen lieben.




Fordern Sie
jetzt Ihr Exposé an
Im Exposé erhalten Sie alle wichtigen Informationen zu Ihrer neuen Wohnmöglichkeit. Auf Wunsch vereinbaren wir gerne ein persönliches Beratungsgespräch, um Ihre individuellen Fragen zu klären.
.jpeg)




.jpeg)
